Vendita struttura ricettiva sul mare Ospedaletti Liguria

Condividi questo immobile
Vendita struttura ricettiva sul mare
IT Ospedaletti - Liguria
€ 3.000.000

Acquistabile con mutuo anche per non residenti
Acquistabile con criptovalute

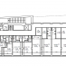
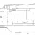
Edificio sulla spiaggia di Capo Nero

Edificio in posizione spettacolare sulla Spiaggia di Capo Nero, Ospedaletti.

L’Attuale destinazione d’uso è Turistico ricettiva.

La società che possiede l’immobile è concessionaria della spiaggia antistante.

L’edificio ha una metratura di 1780 mq disposti su 5 livelli.

La proprietà ha realizzato, grazie agli incentivi statali, un cappotto di copertura dell’immobile che necessita di essere completamente rivisto al suo interno.

La posizione al termine del Lungomare Colombo lo rende interessante per la mancanza di traffico veicolare e per la spiaggia che rimane completamente dedicata senza passaggio di terzi.

Siamo a vostra disposizione per approfondire le caratteristiche di questa interessante opportunità

Leggi tutto
Caratteristiche
  • Rif. interno PalazzoMare
  • 1780
  • Bagni 20
  • Classe energetica -
  • Riscaldamento -
  • Numero Stanze -

Opportunità

Piscina

Più di 10 camere

Posizione esclusiva

Vista mare