Vendita villa in città Reggio Emilia Emilia-Romagna

Condividi questo immobile
Vendita villa in città
IT Reggio Emilia - Emilia-Romagna
Trattativa riservata

Villa d´epoca in città

Prestigiosa e unica villa d’epoca indipendente, situata in una splendida zona immersa nel verde, ma a due passi dal centro storico della città di Reggio Emilia, denominata “Casino Rossi”, facente parte dell’antico sistema insediativo estense.

L’immobile si caratterizza per l’unicità della struttura risalente al ‘700 e restaurata nel 1830, assumendo l’attuale veste sobriamente neoclassica.

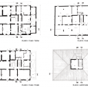
Le metrature della villa sono ampie, di oltre 800 mq complessivi, suddivisi nei vari livelli: piano terra, piano primo, sottotetto e torretta.

Di grande pregio sono il Salone d’ Onore al piano nobile, arricchito da eleganti pitture murali che decorano pareti e soffitto e la Cappellina di famiglia che conserva un pregevole altare in marmo.

Si accede alla villa tramite un lungo viale alberato contornato da giardini all’italiana con aiuole, siepi e arbusti.

L’immobile è stato recentemente restaurato e consolidato nelle strutture portanti, solai, muri e tetto, mentre è da ultimare internamente con la posa degli impianti e tutte le finiture. È stato creato inoltre un ampio garage interrato con ingresso indipendente a cui si accede dalla parte retrostante del giardino di pertinenza.

Considerate le caratteristiche della Villa, che ne fanno un immobile di sicuro pregio e rappresentanza, riteniamo che rappresenti una eccellente soluzione abitativa ma anche una prestigiosa sede di uffici.

Leggi tutto
Caratteristiche
  • Rif. interno 245
  • 810
  • Bagni 4
  • Classe energetica -
  • Riscaldamento Autonomo

Affreschi

Spazi ampi

Edificio storico

Indipendente

Terreno